VILLAS JA
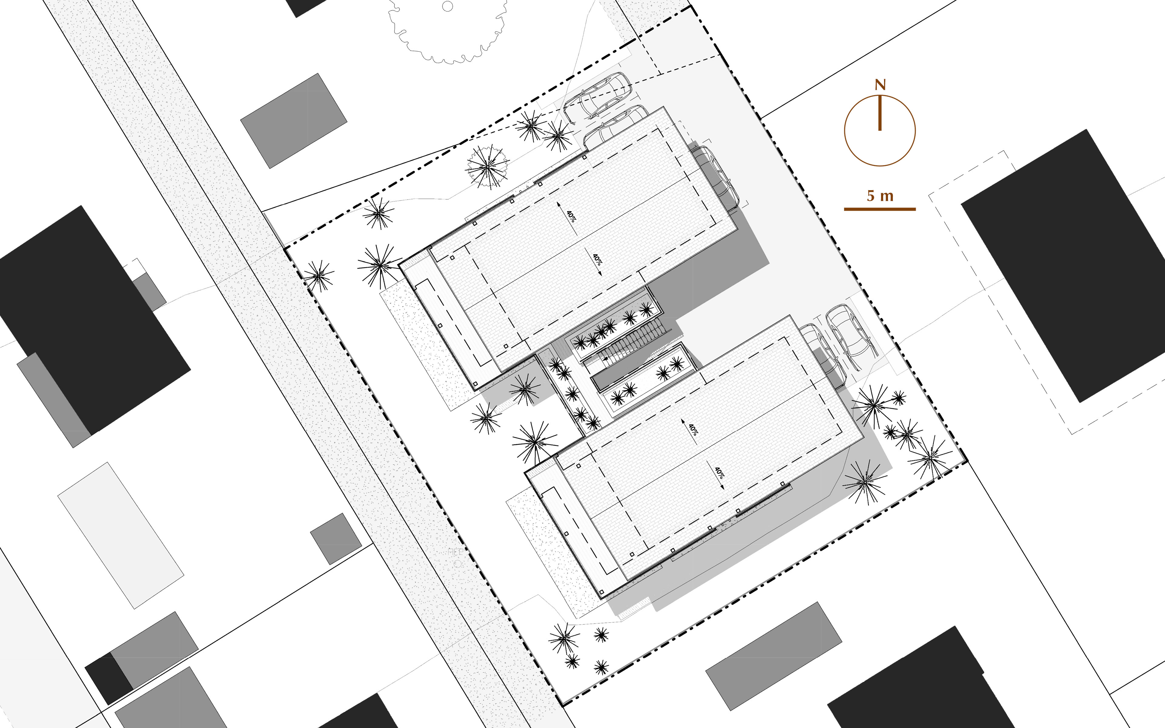
Situé à Sciez, proche du lac Léman, ce projet d’habitation collective se compose de deux maisons jumelées, offrant un total de quatre logements. Conçu pour privilégier les espaces extérieurs, chaque logement bénéficie d’un cadre de vie agréable : de grands jardins privatifs pour les logements du rez-de-chaussée et de vastes terrasses pour ceux à l’étage (voir la vidéo). Ces terrasses, aménagées comme une petite place suspendue agrémentée de bacs à fleurs, favorisent convivialité et connexion avec l’environnement. Une architecture pensée pour allier confort, fonctionnalité et qualité de vie.
© BAROQUE 2017. DESIGNED BY LOGANCEE






