APPARTEMENT M
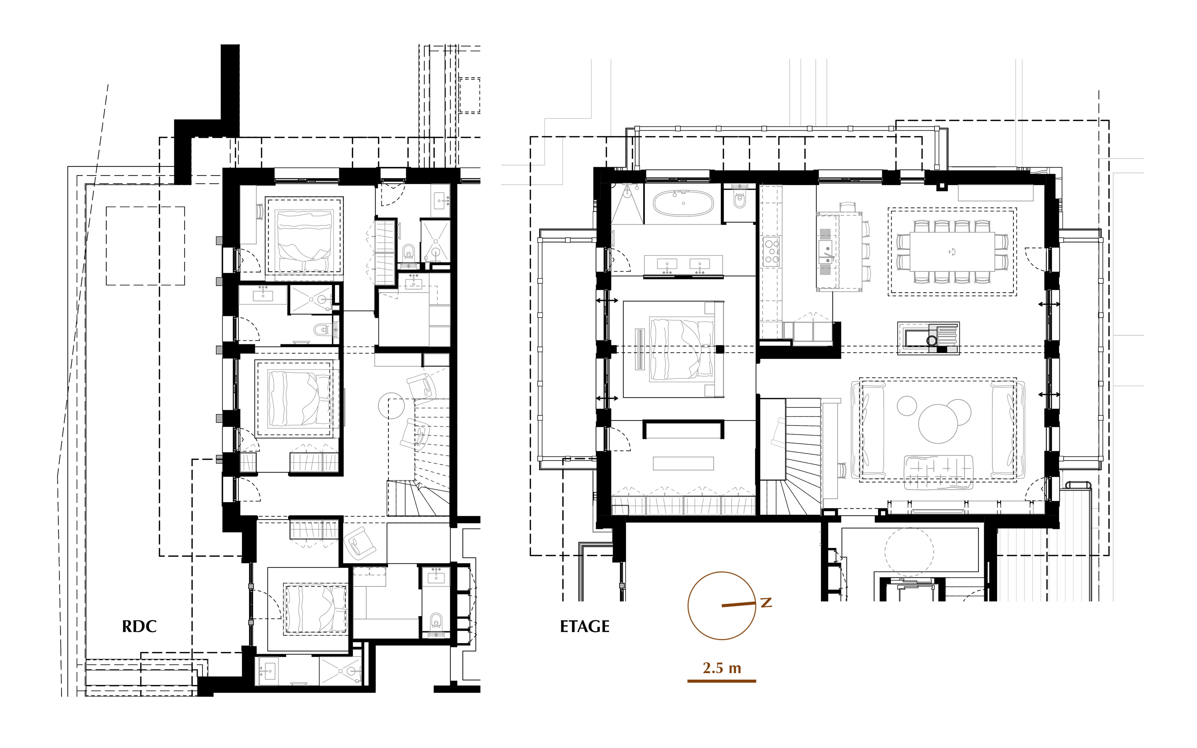
Dans la copropriété des Marmottons à Courchevel, cet appartement a été réalisé entièrement sur mesure. Que ce soit l’escalier avec éclairage intégré et verre pincé, les multiples bibliothèques, les salles de bains en pierre de luserne, la cuisine en marbre et métal, le client a exigé une cohérence des espaces/matériaux et une qualité de finition poussée pour ce beau duplex. La décoration a été confiée à Home&U.
crédits_SCI DE PAUW STEININGER
© BAROQUE 2017. DESIGNED BY LOGANCEE














