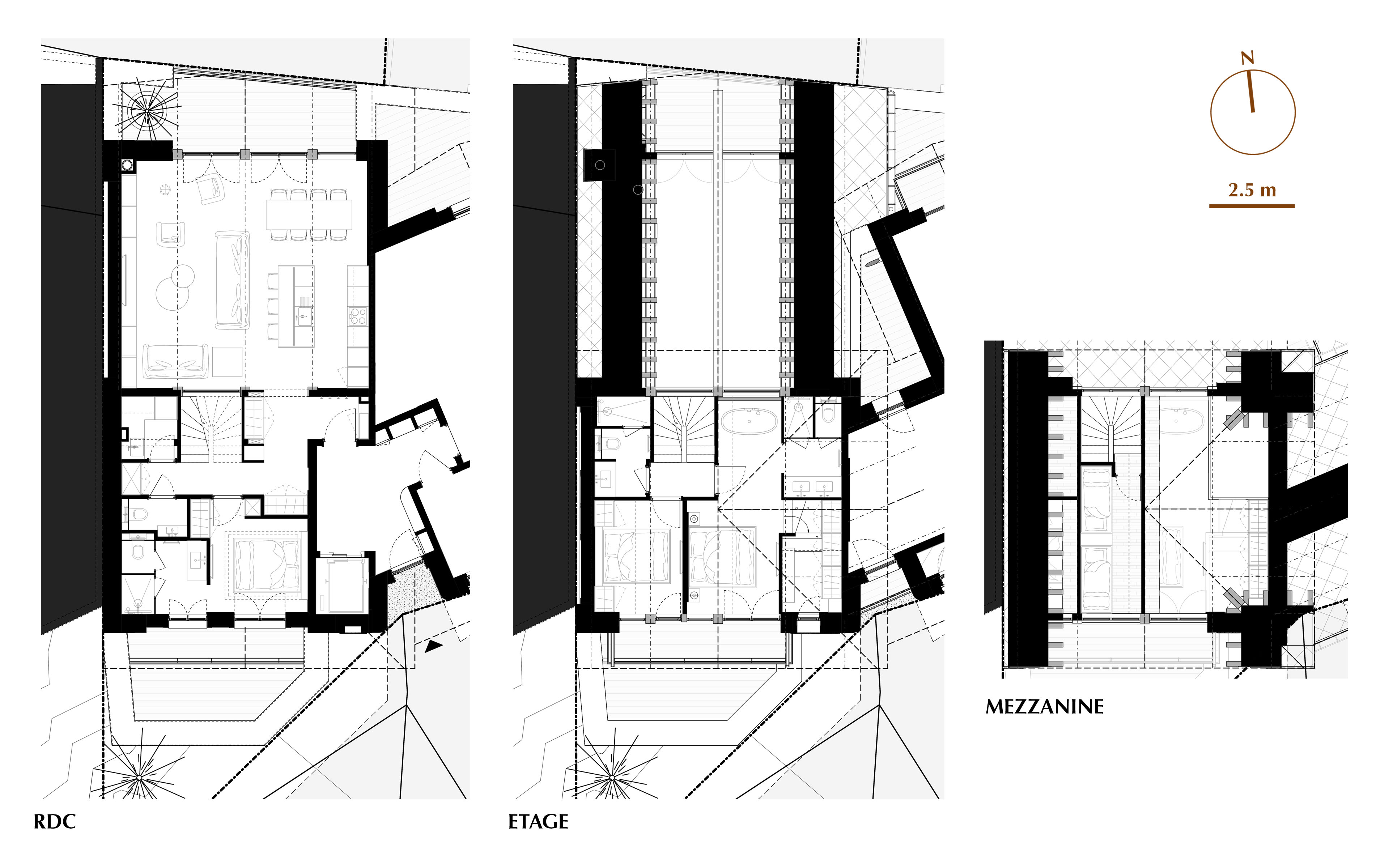
APPARTEMENT B
Dans la copropriété des Bosses à Val d’Isère, ce duplex avec mezzanine se distingue par ses volumes généreux et une architecture qui joue habilement avec la transparence entre les niveaux, offrant une sensation d’espace amplifiée. Chaque détail a été pensé sur mesure : un escalier sculptural en acier, des salles de bains raffinées en pierre naturelle et une cuisine en marbre spécifique.
© BAROQUE 2017. DESIGNED BY LOGANCEE







